Naar hoofdinhoud springen

Offerteaanvraag

Palletrek

Vul zoveel mogelijk velden in en klik dan op "Aanvraag verzenden". U kunt aanvullende informatie voor een uitgebreide aanvraag of een klantspecifieke offerte invoeren aan het einde van het formulier onder "Aanvullende informatie".

Algemene gegevens:
Wat wilt u opslaan?
Uitvoering:
Toepassing
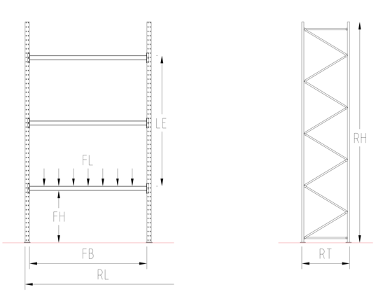
Stellingafmetingen:
(Optioneel, zie legenda voor uitleg van eenheden).
Draagvermogen:
(Zie de legenda voor uitleg van de eenheden)
Voor buitenopstelling met dak:
Kleur stelling:
Montage:
Profiteer van deskundige montage door onze vakbekwame OHRA montageteams.
Aanvullende informatie:
Absenden